Architectural Section Plans Services
MK Architectural is proudly owned independent and progressive India architectural outsourcing company providing professional architectural building section drawings services to constructions industry. We utilize highly skilled architects, draftsman, designers and engineers who know how to increase the value of your sketches, plans and drawings. Our experience in the building section detailing drawings services more than half a decade. We are familiar with the diverse industry standards and requirements in architectural modular building section detailing drawings services. MK Architectural handles large volume of architectural building section detailing drawings projects on a regular basis. However tedious, repetitive or complex your requirements, we can manage them with ease owing to a strong infrastructure and personnel base.
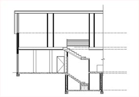
Section drawings can be produced through any part of a building. These normally show section information along the cut-line. So as to display a cross section of the building area identified. Full architectural detail can be shown in elevation. We have expert skilled architectural drafters, who are quite proficient in executing professional modular building sectional view drawings, 3d section view, cross section views, isometric drawings, cad drawings.
Your Architectural sections drawings must show, as a minimum:
- Project location
- Designer’s name and Building Code Identification Number (BCIN), if applicable
- Scale of drawings
- Building components (roof, walls, floors, foundation, etc.)
- Height of building
- Size of building
- Materials used in the building
- Roof slope or pitch
- Room names
- Top of top plate elevation
- Top of floor sheathing elevation
- Top of finish grade elevation
- Bottom of footing elevation
- For additions, relationship to existing building
Our Architectural section drawings services include:
- For Offices- Govt. / Private
- For Company Buildings
- For Institutions- Govt. / Private
- For Hospitals/ Medical Organizations
- For Shopping Centers
- For Hotels/ Restaurants
MK Architectural have built up an excellent reputation throughout U.S.A., Australia, Canada, UK & around the world for producing high quality work. We are fully established as a results-driven company and thrive on turning your ideas into reality. Contact us or send email: info@mkarchitectural.com to know more about our modular building sections drawings services and samples.


