Architectural Residential Plans Services
MK Architectural provides the high quality architectural residential plans services with the help of experts and professional architectural designers. Architectural residential plans are our expertise’s business services. Our commitment to architectural services, exceptional residential plans at affordable prices makes us one of the leading residential and floor plan providers. Our architectural residential plans price guarantee for each residential plans insures that you receive the lowest price around. When you are ready to construct a residential plans or garage plan, our professional engineers will make the residential building process as easy as possible. If you’re looking for residential plans or are in need of a professional architectural residential plans design company, MK Architectural can assist you.
Our teams of architectural residential plans designers are particularly well-positioned to be able to create a custom residential design. Because we are familiar with thousands of floor plans in a variety of architectural styles, we can work with you to put together a one-of-a kind residential design and plans. For example, what kind of house might best fit your lot, the way you want to live, and the climate in your area? Then look closely at the plans in the collections you select to be sure they have the features you need and want.
Architectural Residential Plans contain the following elements:
- Exterior Elevations - show the front, rear and sides of the house, including exterior materials, details and measurements.
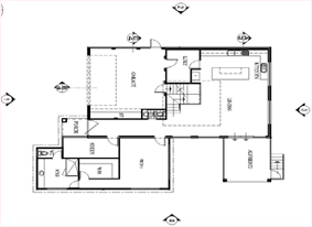
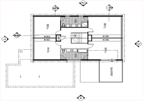
- Detailed Floor Plans - show the placement of interior walls and the dimensions for rooms, doors, windows, stairways, etc. of each level of the house.
- Cross Sections - show details of the house as though it were cut in slices from the roof to the foundation. The cross sections detail the construction of the house, insulation, flooring and roofing.
- Foundation Plans - include drawings for a full, partial or daylight basement and/or crawlspace.
- Interior Elevations - show the details of cabinets (kitchen, bathroom and utility room), fireplaces, built-in units and other special interior features.
- Roof Plans - provide the layout of rafters, dormers, gables and other elements including clerestory windows and skylights.
- Schematic Electrical Layouts - show the suggested locations for switches, fixtures and outlets (not included in JD plans).
- General Specifications - provide instructions and information of structural specifications, excavating and grading, masonry and concrete work, carpentry and wood specifications, thermal and moisture protection and specifications about drywall, tile, flooring, glazing, caulking and sealants.
Contact us or send Email: info@mkarchitectural.com for getting your dream building plans with the size of plots with modern, luxury, interior and structural designs for your budget.


